View as PDF
American National Standard for Hardware Preparation in Steel Doors and Frames
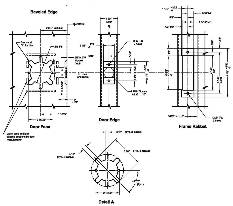
These Standards cover all significant dimensional attributes for mounting common hardware products in steel doors and frames. All dimensions shall be as shown on the accompanying drawings. These standards were developed to show only the most commonly used preparations for door hardware, and provide targets for standardization. Where multiple configurations are in common usage, separate drawings are provided. For other configurations, it is recognized that these standards may be used in part, or with exceptions, while still providing some degree of basic guidance and standardization
For further information, consult the full standard, ANSI/BHMA A156.115 Hardware Preparation in Steel Doors and Frames
BHMA has created this series of Hardware Highlights to provide useful, accessible information about builders hardware for anyone with an interest in devices that hang, control, secure, and trim the doors. BHMA is the trade association which represents almost all of the North American manufacturers of builders hardware. One of its main activities since 1983 has been the development and maintenance of ANSI-approved standards for 35 separate product categories.
Door Preperation Example
